LA Fitness
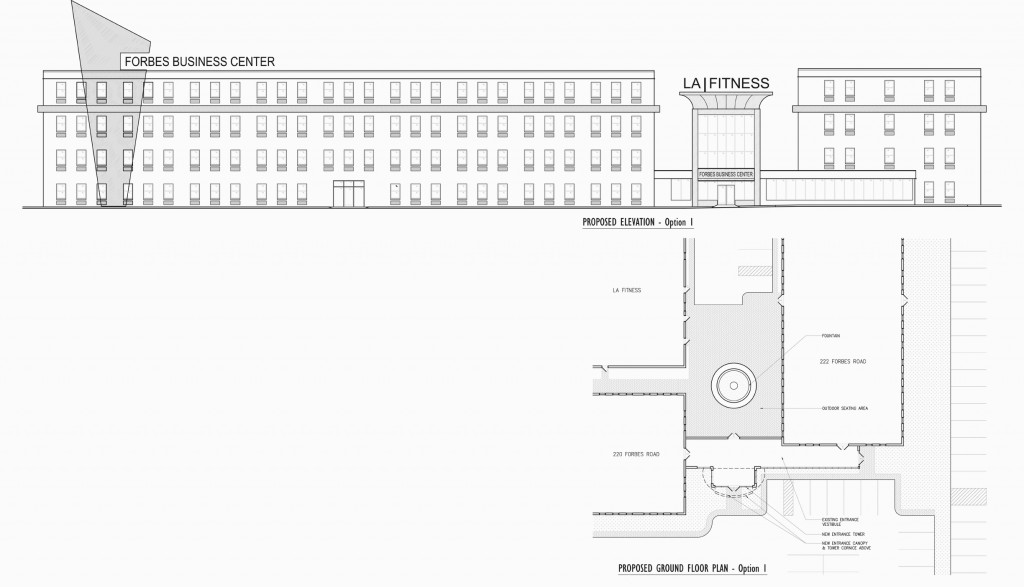
An existing one-story 34,000 sf building located off Route 93 in Braintree. The conceptual design for this project included creating two stories of running tracks, one located on the additional roof between the existing four-story buildings. The dynamic new entrance and ground floor level includes a generous concourse linking the three buildings.
Click on images to view full screen.
Project Location: Braintree, MA
Client: LA Fitness
Project Goal
To create a new, high-end athletic facility in a prime location with a dynamic entrance
tower that grabs the attention of the fast-moving traffic on Route 93.


 
									
		




